1019 8th Street, Baldwin City, KS 66006
View on map Print Similar Listings














































4 Beds
2 Baths
1862 SqFt
Active
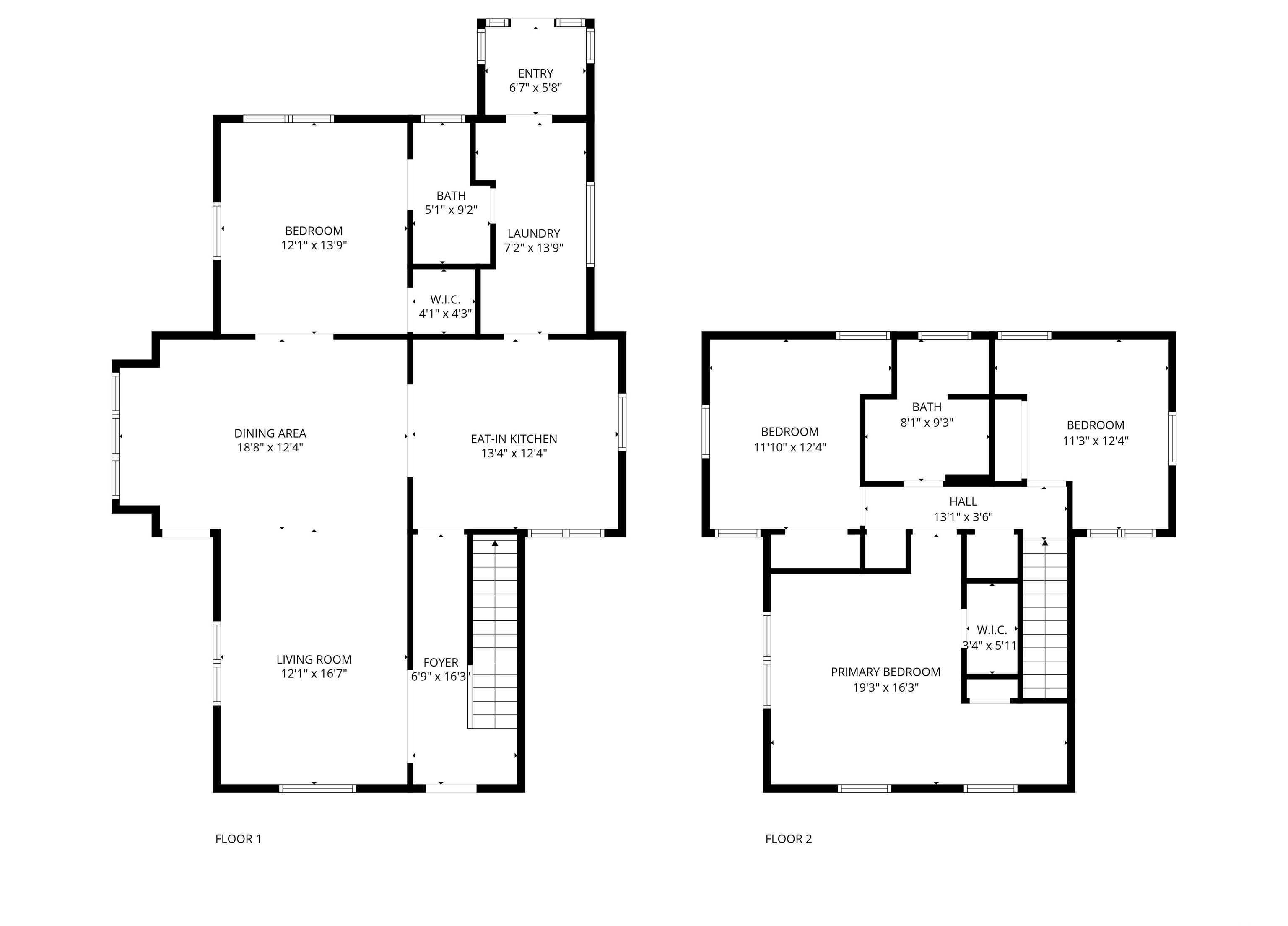
Historic Charm/Modern Living-step into the wonderfully restored 1900's beauty. Sitting on a spacious treed corner lot in the heart of quaint Baldwin City. This gem of a home offers 4 bedrooms,2baths and one car garage.Truly move-in condition.The inviting front porch opens to an entry halfway and huge open living room and formal dining. The first floor bedroom has a full remodeled bathroom and walk-in closet. Refinished hardwood floors highlight all of the first floor. Completely remodeled kitchen w/new cabinets, countertops. sink, fixtures, stainless appliances, and windows galore! Off the kitchen is the utility/laundry/mudroom/back hallway, with pantry,cabinets,countertop and vinyl plank flooring. Upstairs, all three bedrooms have added insulation, modern closets and wood floors.new carpet on the hallway and stairs. Remodeled bathroom features double sink vanity, tile surround tub/shower, new fixtures and window. The entire house has had the electrical and plumbing systems replaced/upgraded. The man waterline and the sewer line have both been replaced. Zoned heating and cooling, separate systems for the main and second floors! The white picket fenced back yard has deck with built-in seating tables. large detached one car garage with power and remote opener.All of this on a brick street! you will want to live here after experiencing the warmth and charm of this beautifully restored home.
Property Details | ||
---|---|---|
Price | $300,000 | |
Bedrooms | 4 | |
Full Baths | 2 | |
Total Baths | 2 | |
Property Type | Residential | |
Sub type | SingleFamilyResidence | |
MLS Sub type | Single Family Residence | |
Features | Eat-in Kitchen, Pantry, Walk-In Closet(s) | |
Year Built | 1920 | |
Roof | Composition, Flat | |
Heating | Natural Gas, Zoned | |
Lot Description | Wooded | |
Parking Description | Garage Door Opener | |
Garage spaces | 1 | |
Geographic Data |
||
County | Douglas | |
Latitude | 38.772002 | |
Longitude | -95.189151 | |
Address Information | ||
Address | 1019 8th Street, Baldwin City, KS 66006 | |
Postal Code | 66006 | |
City | Baldwin City | |
State | KS | |
Country | United States | |
Listing Information |
||
Listing Office | Reece Nichols Johnson County West | |
Listing Office Phone | 913-323-7222 | |
Listing Office Email | kristaw@reecenichols.com | |
Listing Agent | CHRISTOPHER CONLEY | |
Listing Agent Phone | 913-323-7222 | |
Terms | Cash, New Loan | |
MLS® Information |
||
Days on market | 2 | |
MLS® Status | Active | |
Listing Date | Oct 11, 2025 | |
Listing Last Modified | Oct 13, 2025 | |
Tax Year | 2025 | |
MLS® # | LBR164436 |
Map View
Forward this listing
Mortgage Calculator
This information is believed to be accurate, but without any warranty.